Writer, web designer, etc.; born in New York; educated in Argentina, Scotland, and South Africa; now based in London. 
Because it was eclipsed by baseball, an infinitely more indigenous pastime, people often forget that cricket was quite a widespread and popular sport in the United States. It wasn’t until the Civil War that baseball really took over, aided by its shorter play time and the wider national mood. (Doubtless someone has, or will, write a scholarly article on this.)
It survived a few generations more as something of an elite sport, more strongly in Philadelphia and its environs, as well as in colleges and universities. The interwar period pretty much killed it off, only to be revived in interest amongst Americans by seeing it played by urban immigrant communities from the West Indies and the Subcontinent. The last time I checked there was even a cricket oval being laid out on the banks of the Mohawk river, across from the farm Jan Pieterse Mabee purchased from Daniel Janse Van Antwerpen in 1705.

This charming rustic scene shows children playing cricket on the grounds of St John’s College, Fordham, with a priest speaking to a gentleman out on a constitutional with his son. As the college advertised itself in an early prospectus:
This institution, incorporated with the privileges of a university by an act of the Legislature, is situated near the village of Fordham, in a most picturesque and healthy part of the county of Westchester, at a distance of about eleven miles from the city of New York and three from Harlem. It is of easy access at any season of the year, by private conveyance or by the railroad, which passes immediately along the borders of the beautiful lawn in front of the college. The buildings are large, elegant and commodious; the grounds extensive and tastefully laid out.
This part of the Bronx remained within Westchester until 1874, when the parts west of the Bronx River were added to New York County. The remainder of the Bronx was ceded in 1895 and was created a borough of the consolidated City of New York in 1898, though only erected as its own county in 1914 (minus Marble Hill, which is another story entirely).
The engraving was drawn by William Rodrigue, a Philadelphia architect who later became associated with New York’s James Renwick, the designer of Grace Church and St Patrick’s Cathedral. Rodrigue auspiciously married the sister of one Fr John Hughes, who became Bishop of New York in 1842 — and the first Archbishop when the see was raised to metropolitan status in 1850.
St John’s College, now Fordham University, was one of Hughes’ pet projects, and perhaps unsurprisingly Rodrigue was chosen to design many of the earliest college buildings on the former Rose Hill estate, in addition to teaching mathematics, geometry, and drawing. He lived with his family in an outbuilding on the estate that now houses a coffee shop named “Rod’s” in his honour and his sons were among the earliest students of St John’s.
The first buildings Rodrigue completed were the chapel and the residence, the latter of which is still known as St John’s and forms one of the three sides of Queen’s Court, now a residential college within the university. The chapel benefited from stained-glass windows donated by the King of France for the (currently flourishing) old St Patrick’s Cathedral but which were found to be the wrong size and so incorporated into what is now the University Church.

The building in the right background of the view was the main house of the Rose Hill estate purchased by Bishop Hughes. For a long time it was known as the Administration Building or the Manor House, though as it dates from the 1830s it has no direct connection to the Manor of Fordham granted to Jan Arcer by Governor Lovelace in 1671 (other than sitting on the land of it). More recently it was renamed Cunniffe House thanks to the generosity of Maurice J. “Mo” Cunniffe, Fordham Class of 1954. The wings have been much altered but the central block of the house remains largely intact.
In 2019, the university’s emeritus professor of history, Dr Roger Wines, discovered the earliest known image of the institution while sifting through periodicals at the Philadelphia archdiocese’s research centre.
“It is located in a beautiful situation remote enough from the city to make it in the country,” the accompanying text in The Truth Teller, an early Catholic newspaper of New York, explained, “enjoying all the advantages, and yet so near the city as to afford it all the conveniences attainable in town.”
“The circumjacent country is extremely beautiful,” it continues. “The river Bronx meanders not far from the college, amongst undulating fields, and magnificent forests. […] We have every reason to congratulate ourselves on the selection of so fine and desirable a spot for the education of youth.”
The writer assures the college “will stand a perennial monument of zeal and success to the admiring eye of posterity”.

In the 28 November 1868 issue of The Spectator, this account of an American village election was printed. The village in question was New Utrecht, founded in 1652 by our Dutch forefathers of old.
In 1868 it was still a village; today it is very much a neighbourhood of the Borough of Brooklyn, King’s County, in the City and State of New York.
Closer to home in Westchester, there are plenty of local offices up for the determination by citizens. It might be rather fun to stand for Town Clerk or Village Justice or Receiver of Taxes…

The polling-place was at the village of New Utrecht, from which the township takes its name. A township here is a sub-division of a county which manages its own local affairs by town meeting. It commonly includes several villages, from the oldest of which it takes its name; and at this all its public business is transacted, although in wealth it may be of all of them the least important.
New Utrecht was first settled by the Dutch, as its name bears witness, about two hundred years ago. Until within some thirty years a few Holland families, to which were added one or two of Huguenot origin, owned nearly all the land for many miles around; and even now, when you find yourself here in a company of farmers, it is safe to address two men in three as Van Brunt, Bergen, Cortelyon, or Bennet.
The Yankees have taken but little hold of this soil, but within the last twenty years there has been a great dispensation of Irishmen, owing to the nearness of New York and the cheapness of land, much of which, although it has owners, lies open and neglected in what are called commons, upon which shanties are huddled in little groups. After driving down the beautiful shore road, which is lined with small villa residences, and passing Fort Lafayette, the famous “Bastille” of the Rebellion, we struck across one of these commons to the road which leads to New Utrecht.
Half a mile from the shore we topped the highest point of ground in an area of many miles, and looked straight off upon the ocean. The blue above bent over a blue below; no dark, deep blue, but cold, bright, steely; the water looked like a flat sky bent back over the earth from the horizon. The road, which we soon struck, was good enough, but although the main road, it was so narrow that there was barely room for two waggons to pass each other. It is just the same little road that the Dutch farmers made when they settled the country. There has been no need for its enlargement or for any change in its direction; and it winds around little knolls and through deep cuts from this to that old farmhouse down to the village and thence to the water. Pleasant enough now, although rather desolate; in the winter it is often impassable, for the snow drifts into the deep cuts until it lies level with the laud on either side; and then sometimes these farmers do not for days go five hundred yards from their houses. And yet New York is but twelve miles away, and clear in sight pass the ships and the steamers that bear the greater part of the commerce between two hemispheres.
The village is a dead-and-alive little place, with its dead part very dead and its life sinking slowly into the salt ooze that borders the township seaward. The larger farmhouses along the road are lapsing languidly to ruin. Almost all of them are wooden buildings, but some of them were evidently the homes of men who lived handsomely as well as comfortably, and they have an Old-World look of gentility in their structure and their surroundings. But they have not been painted within the memory of this generation, the fences are broken, the gates unhinged, the grass and the walks neglected, and nothing has been done to keep up the groves of trees with which many of them are surrounded. A few of them are roofed with tiles that were brought from Amsterdam; and it is plain that there has long been an end to that importation.
As we near the centre of the village, where two roads meet at right angles, the one in which we are not crossing the other, we see a pretty stone church with a square tower. It has some of the charm which age bestows upon buildings, but takes from man; but I am told by those who have entered it that within it is the most doleful and barn-like of all religious structures. Of course the faith preached here is that of the Dutch Reformed religion. There are Episcopal (Church of England) and Roman Catholic churches not far away; but they are in the parts of the township which are chiefly occupied by new comers. This church would have seemed more venerable to me if there had not arisen directly in front of it in the middle of the road a tall white flagstaff, topped by a gilt spread eagle, and from which on this occasion floated a spick-and-span new specimen of the flaming banner of the Union. The church and the flag are both good things in their way; but 1 like to take them separate it à la Russe as I do certain viands which some people mingle on one plate.
On the road we have met and overtaken carriages of all sorts, loaded well with voters. The most noticeable of these are the large farm waggons in which the people around here send their cabbages and turnips to the New York market. These have been hired by the political committees, or volunteered by their owners to bring voters from the remote parts of the township – voters who otherwise would hardly cast their ballots. They are almost all of them filled with Irishmen, no small proportion of whom are raw emigrants made into “American citizens” for the nonce, at the expense of the Democratic committee, who hunt them up and pay their fees of naturalization. For these men always vote the Democratic ticket, and “go it blind.” I have learned, however, that some of them down here, led by their more experienced and intelligent countrymen, have formed a society or club, the members of which vote on local questions for the man or the committee that pays the most money.
Treating here has little or no influence in elections; for whiskey and money are so plenty that the former does little for the spread of Democratic principles, except in the way of daily training. Filled although these waggons are with Irishmen going to or coming from the polls, there is no jollity in them, hardly a word spoken. The men ride along silently crouched together in the piercing wind.
Perhaps they may be chilled by our approach as well as by the stiff nor’-wester; for although the country around is a very hot-bed of Democracy, “a perfect Sodom and Gomorrah of Copperheadism,” as the gentleman who drove us said, we are all well known as staunch Republicans. I am soon confirmed in this conclusion; for one farm-waggon load of Irishmen as it passes us sets up a cheer, “Hurrah for Grant!” We are astonished. The physiognomy and the accent of the cheerers are unmistakable; and yet—Irishmen voting against the Democratic candidate! The thing is unheard of. And yet another waggon comes, and as it passes, up goes the same “Hur-r-rah for Grant!” Is the world coming to an end? Is ours a moral earthquake? I learned, too, that the gardener here, an intelligent North of Ireland man who has been in the country for fifteen years, walked the five miles to vote the whole Republican ticket. He declined an invitation to ride to the polls with the master of the house because, as he confessed in secret to one of the young gentlemen, he feared it might be thought that he had sold his vote.
As it was, he subjected himself to being called “a barrel of flour” by his Hibernian friends who voted against him, but being a powerful fellow he “polished off” one of them and settled that matter. The present of a barrel of flour (worth about twelve or fifteen dollars) to the “ould woman” seems to be one of the ways of bribery, and hence the reproach. Now, not one of these Irishmen is a Republican, and not one of them would have voted the Republican ticket if a War Democrat had been nominated instead of Mr. Seymour. But many of them had been in the Army, and most of them believe very heartily in the Union, although exactly what that Union is they seem to be almost as ignorant as some native “Americans.”
The polls are at the village tavern, which is the largest house in the neighbourhood, and has evidently been one of those fine old country taverns, rich in unpretending comfort and simple good cheer, which the railways are fast improving off the face of the earth. It is surrounded with vehicles of all sorts, most of them very humble and very much neglected; but a few of them the equipages of gentlemen of wealth who, like Dogberry, have two gowns and everything handsome. The stable-yard and the horse-shed are so full that we find a place with difficulty, under the guidance of two negro helpers. […] The steps and porch of the old tavern are filled with men, and so is the bar-room, where, however, no liquor is sold to-day. It is dismantled, and here are the ballot-boxes. They stand upon a board that rests on trestles, and behind them sit four or five men. They are the Inspectors of Election and a Justice of the Peace.
The voting is so quickly done, and with so little ceremony or fuss of any kind, that it seems strange that so trifling a matter should bring so many people together. A registered voter steps up, gives his name, it is found on the register, checked, he hands his ballots to an inspector, who announces that he votes for all, i.e., President, Governor, and Members of the Legislature, or for two or one of these tickets, the ballots are dropped into the box, and the voter gives place to another. The unregistered voter answers, under oath, a question as to his place of residence, gives a reason for not having registered himself, produces a known witness to the fact of his residence, and his ballots are also then received. In and around the tavern there is no more noise than if it were Sunday, and we were all at the old church opposite.
My friend’s wife, who did not want to come too near the poll, and who left us to wander about among the old grave stones, found the tenants of the churchyard hardly more quiet than these sober, silent farmers and labourers, who seem to do their little talking almost under breath. Outside, the only excitement is caused by a jackanapes, the fool of the village, who has rigged himself up in an old Zouave uniform, and is going through the manual with a rifle, at the command of some boys, little less silly than himself. We exchange a word or two with some friends, and then take up our fair companion, and drive home shivering through the crystal air, under overcoats and rugs, comforted but not warmed by the consciousness of having performed a duty at some sacrifice.
You will have learned long ere you see this letter that, Irishmen and all, we could not save the State for Grant, as well as that he could do without the State. The Democratic majority in the Metropolitan district (a part of which is this Bœotia) was too great to be overcome. It was increased by fraud without a doubt, but the votes thus cast were not numerous enough to materially affect the result, and Mr. Hoffman, the Democratic governor elect, is sure of his office. The important fact is that with all the enthusiasm for Grant and the disgust with Seymour, the Democratic vote was larger than ever before, and that the increase has been steady through the past twelve years. The Tribune vaunts the following increase in the Republican vote as “a record of which we have a right to be proud!”-1856, 17,771 ; 1860, 33,290 ; 1864, 36,681 ; 1868, 47,778: a notable increase truly, were it not for the suppressed fact that this (according to the Tribune Almanac) has been the increase of the Democratic vote: 1856, 41,913; 1860, 59,890; 1864, 73,709; 1868, 108,025. It is by such disingenuous fetches as this that political managers disgust people with politics.

Every few years someone or other ‘rediscovers’ the beauty of Wave Hill, the twenty-eight-acre estate, house — two houses, actually — and garden in the Bronx overlooking the waters of the Hudson River.
This time it is the turn of the Financial Times, who sent Andrew Jack to investigate the domain in the Riverdale neighbourhood of the city’s northern borough:
With trees, lawns and varied and colourful year-round flowerbeds overlooking the river, it feels almost as remote as when it was a lengthy carriage ride from the city for William Lewis Morris, the lawyer who built the original Wave Hill House in 1843.

Theodore Roosevelt spent a summer or two here, as did Mark Twain in the later years of his life. George Walbridge Perkins bought it in 1903 and expanded it to include the adjacent Glyndor House.
The ever-crafty Robert Moses persuaded the Perkins-Freeman family to hand Wave Hill over to the City of New York in 1960, and since then it has been carefully looked after and open to the public for a small charge.
(Those Riverdale residents who are not allowed to handle currency on the Jewish Sabbath are allowed to book and pre-pay for entry thus obtaining access without breaking their observance.)

For the past two years, Pratt landscaping graduate Ray Oladapo-Johnson has been in charge of this verdant realm (photographed here by Beowulf Sheehan).
Head over to the FT to read more.


Manhattan’s Riverside Park is one of the jewels of the island, with four miles of rustic beauty spilling down to the Hudson River (with, alas, the Henry Hudson Parkway in between).
These riparian grounds are under the charge of the Parks Department of the City of New York and entrusted to the care of the Riverside Park Conservancy.
Aside from their own employees, these make use of numerous volunteer gardeners to take care of the many trees, flowers, and other plants that grace this shoreline.
The nineteenth-century structure in which much of the equipment for these volunteers was stored — just inside the park at 107th Street — proved too small and unwieldy for ongoing use.
Expanding it outwards risked the need for felling trees, so in typical New York fashion the Conservancy decided the only way was up.
In 2003, the Peter Jay Sharp Volunteer House was opened: an elegant and multipurpose construction that triples the usable space of the previous derelict building.
We have Jeffrey Murphy of MBB architects to thank for this elegant building which fits effortlessly into its surroundings (and Peter Aaron for these photographs).



For a film fan, to grow up in an American town with a small cinema is to win the lottery of life.
In my childhood, we had the advantage of two little movie houses within walking distance: the three-screen Bronxville Cinema and just a little bit further afield by foot the single-screen Pelham Picture House.
Fittingly, these two are now run together as the somewhat pretentiously titled but no-doubt quite useful ‘Picture House Regional Film Center’.
Way out on the South Fork of Long Island, the old whaling village of Sag Harbor has the perfect little small-town American movie theatre.
There is something just right about this cinema on the village’s Main Street — as Variety put it: “beloved for not only its obscure programming but also its 1930s red neon sign with the village name”.

The single-screen cinema first graced the main drag of the village in 1936, the creation of architect John Eberson whose ‘atmospheric’ movie theatres are dotted across the United States and even as far as Australia.
Eberson designed two of greater New York’s five Loews ‘Wonder Theatres’: the Loew’s Paradise on the Grand Concourse in the Bronx neighbourhood of Fordham and the Loew’s Valencia in Jamaica, Queens.
This cinema was purchased by Gerard Mallow in 1978 who for nearly four decades preserved the Sag Harbor Cinema as an arthouse movie theatre with an eclectic offering.

In December 2016, the cinema suffered a devastating early morning fire that destroyed most of the structure.
The iconic neon signage was salvaged by Chris Denon of North Fork Moving and Storage and the sculptor and ironworker John Battle.
Meanwhile, a community partnership that was already in discussions to purchase the institution from Mr Mallow came together to raise funds and oversee the rebuilding, including several improvements.

The main hall was divided between a large screening hall and a smaller one, along with a new screening room on the first floor (that’s second in American English) behind the iconic façade.


The artist Carl Bretzke captured Sag Harbor’s cinema in plein-air painted form.
Encouraged by the Grenning Gallery, Bretzke offered limited-edition prints of his painting, the proceeds of which helped to pay for reconstructing the movie theatre.



NK Architects also created a new bar and lounge, two roof terraces, an art gallery, and educational space within the original footprint of the cinema.
Following coronavirus-related delays, the new facility finally re-opened in June 2021.





Given the improvement in the facilities, it seems like the Sag Harbor Cinema’s fire was the best thing to ever happen to it.
It is reassuring to know this little movie theatre will be gracing Sag Harbor’s Main Street for many moons to come.


Well, not quite a lord, but a Vanderbilt — which in America is much the same. The indoor tennis courts at “Idle Hour” in Oakdale, L.I., were some of the grandest ever built in the United States.
The house itself, designed by Richard Howland Hunt for William Kissam Vanderbilt and completed in 1901, is unremarkable and not on the finer end of the spectrum. To me, it has all the glamour of a railway station serving a mid-sized town.
Just a year later, however, W.K. commissioned the architectural partnership of Warren & Wetmore — later famous for Grand Central Terminal — to design an extension that featured an indoor tennis court with adjacent guest quarters in a somewhat extravagant style.
As the polymathic Peter Pennoyer pithily put it in his The Architecture of Warren and Wetmore:
“The heavily rusticated stone of the gallery wall, exuberantly carved with atlantes and fanciful over-door sculpture and painted with scrolling frescoes, created a sculptural backdrop so surprising and original that it overwhelmed the vast open space of the court. For an ancillary building, the scale and energy of the architecture were tremendous.”
One can certainly imagine enjoying a refreshing summery gin-and-tonic on that loggia.

William Kissam Vanderbilt died in 1920. After a spell as an artists’ colony, in 1938 the estate was purchased by a cult called the Royal Fraternity of Master Metaphysicians, founded by a rogue named James Bernard Schafer who claimed he could raise an immortal child. (They also bought the old Gould stable on West 57th Street.) Schafer was jailed in 1942.
The National Dairy Research Laboratory took over the property and split the former tennis courts into lab space. Long Island’s Adelphi College bought Idle Hour in 1963 as an overflow campus which they later spun off into an independent institution, Dowling College, which shut in 2016.
For another indoor tennis court from the same period, see the old Astor place in Rhinebeck in the Hudson Valley.
Think of Jesuits and architecture and you probably think of the Baroque. At Fordham University, however, the SJs followed the American fashion and built in the Collegiate Gothic that gradually took hold of campuses across the continent from the middle of the nineteenth century onwards.
The first academic buildings in Anglo-America — like Harvard’s Massachusetts Hall and Yale’s Connecticut Hall — were in the vernacular Georgian style of the colonies. Robert Mills’ 1839 design for a library building at West Point was one of the first Collegiate Gothic buildings in America (and that institution’s first step on the road to going full Gothic). Some partisans will hold out for Old Kenyon as the first, others for Knox College’s Old Main. These, however, are survivors: the first Gothic university building in America was NYU’s University Hall on Washington Square, foolishly demolished in 1894.
Gothic is not solely an architectural style and it was a West Pointer, Edgar Allan Poe, who first crafted and popularised a distinctly American Gothic bailiwick in the republic of letters.
As Prof John Milbank put it the other day:
“[The] American gothic literary tradition contests the mainline American story. For the gothic perspective, the United States is a very old country: there since 1600, bearing medieval freight. Its exploring of frontiers will not open up hope, but encounter hidden horrors and horrifying potentials.”
“Far from having escaped Old Europe and started afresh and innocent, for the Gothic tradition it is rather that all the more extreme European demons (sects, cults, fears, fantasies) have fled to the New World where they always lurk, in league with its uncannily vast spaces.”
The architectural cornerstone of this Gothic chain of being linking both side of the Atlantic is St Luke’s Church in Newport, Virginia, built in the 1680s. Its pointed arches have sparked great bones of contention amongst architectural historians: is this an organic expression of a still-existing tradition from the Old World or a contrived and purposeful orchestration by colonial settlers? Gothic survival? Or Gothic revival?
I plump for the former: Gothic has always been a living tradition, even if somewhat neglected in certain generations. Ideology and architecture don’t mix well, whether it’s Pugin purporting that anything that is not Gothic is effectively pagan, or partisan modernists deriding any contemporary use of traditional forms as “pastiche”. The term “revival” is useful chronologically, but can obfuscate the breadth of an architectural, artistic, or literary style.
The brickwork tracery of Newport church renders the Gothic style in all its glories and shapes and forms an eternally valid option for the architecture of the New World. You can bauhaus all you want to, but American Gothic is real.
Thus whether unleashing ancient demons or — in the Jesuits’ case — slaying them, college presidents across the United States enthusiastically adopted the Collegiate Gothic style (while at the same time omnivorously crafting feasts of neo-classical, colonial, beaux-arts, and other styles).
Interwar American Gothic is some of the best Gothic of the twentieth century, and probably won’t be matched for centuries yet. Aside from excellent academic examples, just look at when the Gothic merges with the Art Deco as in the old GE Building by Cross & Cross at 570 Lexington Avenue.
Founded by the Jesuits in 1841, St John’s College found a home in the old manor of Fordham in the Bronx, granted to the Dutchman Jan Arcer (anglicised at John Archer) in 1671 by the provincial governor Francis Lovelace — brother to the poet Richard. Bishop John Hughes purchased the 106-acre Rose Hill estate to found a college and diocesan seminary. Eventually St John’s College took up the name of Fordham University by which it is known today.
Our old friend Edgar Allan Poe lived in a cottage in Fordham quite close by the college. He found his friends and neighbours the Jesuits “highly cultivated gentlemen and scholars, they smoked and they drank and they played cards, and they never said a word about religion”. It is claimed by some that the bell of ‘Old St John’s’, the Fordham University Church, helped inspire his famous poem ‘The Bells’.
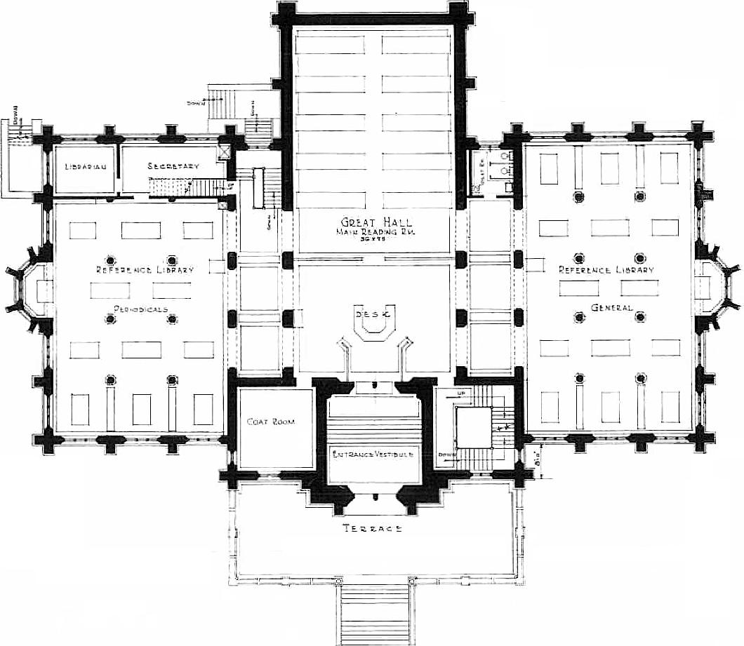
The university grew slowly until the 1920s, a decade of expansion during which president Fr William J. Duane SJ was keen to build a suitable library for the college. The library that would one day bear his name was built 1926-1928 to a design by the Philadelphia architect Emile George Perrot, accomplished in his day but not now widely remembered. (Incidentally, Perrot later completed a building — White-Gravenor Hall — at America’s first Catholic and elder Jesuit university, Georgetown.)

“Architecture,” Perrot wrote, “is the incarnation in stone of the thought and life of the civilization it represents.” If Duane Library is anything to go by, the thought and life were fine indeed.
Perrot provided a central block crowned with a tower, flanked by two pavilions. In front, a wide flight of steps ascends to a raised platform and, through a pointed arch, the reader is led via the entry portal up a further set of internal stairs to the principal floor of the library.



Through these doors with their intricately carved surrounds, the reader enters the great hall of the library, passing a circulation desk — housing no-doubt assiduous and eagle-eyed librarians preserving order and quiet — and onward through a carved wooden screen to the reading area beyond.


The main reading room is a fine space, and could easily have been the dining hall of an Oxbridge college or indeed a chapel dedicated to divine worship.
The tendency of interwar American architects to design libraries like cathedrals is well documented, with Yale’s Sterling Memorial Library leading the way.


The sacral aura of the building was increased in 1949 when the mural ‘The Journeys of St Isaac Jogues in the New World’ was installed in the gothic arch of the reading room.
Jogues was the first Catholic priest to have visited the city of New York and did missionary work amongst many of the native tribes up the Hudson and beyond in New France before his martyrdom in 1646.
The muralist and designer Hildreth Meière designed this depiction of Jogues’s travels which was executed in casein and gesso relief by her collaborator Louis Ross. It was restored as part of the 2004 renovations to the building.


Circulation to the flanking wings of the library is through low arches that were frequently deployed in interwar American Gothic interior spaces, particularly in New York. (Viz. South Dutch Reformed Church [now Park Avenue Christian Church] in Manhattan, St Joseph’s Church in Bronxville, and elsewhere.)

Perrot understood the ever-evolving nature of universities as academic communities and living organisms. The future of the Duane Library was not, despite its building materials, set in stone.
The architect planned the building so it could be expanded by later generations when the need arose — either outward by extending the wings or backward by building additions to the rear.
The fathers of Fordham umm’ed and ahh’ed but never got around to extending the library. Instead they crammed more and more volumes into the original footprint, adding layers of stacks that expanded into the great hall.

Schemes were devised, only to be shelved by economic downturns or other factors. Judging by the look of the 1968 proposal from DeYoung and Moskowitz (above), perhaps we should be glad.
In the 1990s, a massive new university library was constructed at the western corner of the campus and old Duane was left empty.

It wasn’t until 2004 that Fordham repurposed the Duane Library with a comprehensive renovation to serve as the Admissions Office and first port of call for prospective students, as well as home to the theology department.
The exterior staircase and terrace were removed and the entrance lowered to the ground level, allowing easier handicapped access but also increasing the utility of the lower level interiors.

Restored to its former glory, the great hall is now used to welcome groups of visitors as well as a 140-seat performance or lecture venue.
The stained glass window was installed in 1929 as a gift from the Class of 1915, and depicts the study of philosophy, literature, astronomy, natural history, and geography.

One of the recent additions to the Duane Library is a quarter-scale replica of the ceiling of the Sistine Chapel. It was created for the 2017 exhibition ‘Michaelangelo: Divine Draftsman and Desiner’ at the Metropolitan Museum of Art.
Fr Joseph McShane was visiting the exhibition alongside a Fordham trustee, his wife, the Fordham chair of art history, and a museum administrator and said as soon as he walked into the room he wondered if he could find a home for it at Fordham.
As chance had it, while viewing the exhibition they bumped into Dr Carmen Bambach, a Met curator specialising in Italian Renaissance art who had previously been an assistant professor at Fordham.
Following the tour, the group decided to propose that the university house the copy of the ceiling once the exhibition was finished. “Much to my surprise,” Fr McShane said, “we were informed a few weeks later that the Met approved our proposal.”


Taking inspiration from Prof Milbank’s earlier-mentioned comments about gothic literature, we could hardly visit the ancient manor of Fordham and the former library of its Gothic university without taking in a ghost story.
On a Sunday night before a final exam, an economics student was studying late in the Duane Library and was the last person left on the floor. Suddenly he heard the sound of footsteps and peeked outside his cubicle. He saw an old priest with a kindly face so he said hello to him.
The priest introduced himself as Father John Shea and asked what he was doing in the library so late. The student explained that he had an economics exam he was studying for. “Oh!” said the priest. “I used to teach economics here. But I haven’t taught in three years.”
The priest asked if the student would carry on to do a PhD but he said no, he was planning to go to law school instead and had already heard back from Georgetown. “Good school! I got my doctorate there,” the priest offered.
After a few minutes of pleasantries, the student ended the conversation and returned to his studies.
Following the exam the next day, he was in the economics department and, chatting with the departmental secretary, he mentioned that he had met Father John Shea the night before. The secretary told him he must be joking because Father Shea had been dead two or three years.
A look in an old departmental catalogue confirmed that the good father had indeed obtained his doctorate from Georgetown and a picture of Father Shea looked like the priest the student saw.
As luck would have it, in 2012 another Fr John Shea was appointed to Fordham College at Lincoln Center, making him the third Jesuit of this moniker at Fordham since John Gilmary Shea.

As the admissions office and theology school, any ghosts still haunting the Duane Library will have plenty of new visitors to meet as well as learned scholars to discourse with.
And while Fordham may be haunted, it is good to know its ghosts are friendly rather than fearsome.


Just in time for Christmas: some excellent news for the Knickerbocker Greys.
Her Excellency the Governor of the great Empire State of New York has signed into law a requirement that this venerable Manhattan cadet corps be allowed to remain in its quarters at the old Seventh Regiment Armory (as The New York Sun reports).
Over recent years the Park Avenue Conservancy has restored the building — a gem of American architecture and interior design — but also effectively expelled the military units still based at the Armory.
The Greys managed to hold out in their “800-square-foot broom closet” (as the New York Post described it) but the Conservancy moved to evict the youth group in 2022. The Greys have fought the eviction in court.
In June a bipartisan bill guaranteeing the Knickerbocker Greys “access and use for permanent headquarters” of the Armory “for the purposes of programming during periods which are not periods of civil or military emergency” passed in the State Assembly and Senate but has only now been signed into law.
The hope is this new legislation will persuade the Conservancy to drop their eviction proceedings which the Greys have been challenging.

Dempsey Heiner was neither coward nor fool: he lied about his age to join the U.S. Navy during the Second World War and later studied at Harvard, Yale, and the Sorbonne. His schoolmate from St Bernard’s days, the Paris Review founder George Plimpton, described him as “the brightest boy in the class, a genius”.
In addition to his wide reading and erudition (which he wore very lightly), Dempsey was also one of the kindest, gentlest creatures the world has ever known. He spent most of his life uncomplainingly caring for his disabled wife day in and day out for decades. By the end, she was immobile, blind, and nearly comatose.
As his parish priest put it, “Not once did I ever hear him speak of her as anything but a blessing… and he seemed never so joyful as when he tried to make her drink through a straw.”
He died in 2008 and I still think it was one of the greatest privileges in my life to have counted him amongst my friends.
Dempsey’s most famous act — one would be tempted to use a bit of New York tabloid hyperbole and say most notorious act — occurred on this week in 1999. It is might best be described as the nexus between filial piety and art criticism.
In the late 1990s, Charles Saatchi put on an exhibition at the Royal Academy entitled ‘Sensation’ displaying works from his own collection produced by ‘Young British Artists’ or YBAs. The show was largely an act of self-promotion and the Royal Academy was accused of collaborating with Saatchi to increase the value of his own collection for eventual re-sale.
Among the works on display was a depiction of the Blessed Virgin which was surrounded by pictures cut out of pornographic magazines, although the press tended to centre in on the artist’s use of cow dung in the painting.
By 1999, Saatchi’s exhibition had crossed the Atlantic where it found a temporary home at the Brooklyn Museum. Despite being one of the best collections of art in the United States, the Brooklyn Museum has suffered somewhat from its borough’s perception as something of a bag-carrier for the more glamorous neighbouring isle of Manhattan.
Dempsey, a convert to Catholicism, had a profound devotion to the Blessed Virgin. He wasn’t keen on the idea of some art-market scheme profaning the image of the Mother God, so in December 1999 the 72-year-old New Yorker bought a bottle of latex paint, smuggled it into the Brooklyn Museum, and daubed the paint on the insulting artwork.
As luck would have it, the Magnum photographer Phillip Jones Griffiths was visiting the museum with his daughter and was in the room when Dempsey began his rather pro-active work of art criticism. Jones Griffiths caught Dempsey in the act with his camera and the next day the image was splayed on the front page of the New York Post.

The security guards detained him pending the arrived of New York’s finest, but Dempsey told me that once his police escort was out of view of museum officials they each patted him on the back and congratulated him for his deed.
Dempsey’s act of defiance was almost certainly a felony-level offense but, as the Museum did not want to put a value to the artwork, the Brooklyn DA’s office felt obliged to reduce the charge to a misdemeanour — still carrying the possibility of up to two years in prison.
At trial, Dempsey said the exhibition’s gravest sin was neither blasphemy nor profanation but its “suggestion that there is no beauty in the world.”
“It’s like what Jean-Paul Sartre said: ‘L’enfer, c’est les autres’,” he told the court. “I reject Sartre’s view of humanity. Art is also supposed to be about skill. There was none of that in ‘Sensation.’”
A spokeswoman for the Brooklyn Museum deployed almost comical de haut en bas at the trial: “I don’t think we’ll respond formally to Mr. Heiner, beyond pondering what in his background makes him an expert on artistic skill.” (His Yale degree was in law and his Sorbonne degree in medicine, so I’m not sure if Dempsey ever formally studied art.)
One of the museumgoers in the room at the time told the Post that, while he disagreed with the vandalism, he “understood” Dempsey’s reaction: “Someone had to stand up and say, ‘This is not right.’”
“I think it was heroic,” our own Irene Callaghan (who died this year) told the Post. “He did it for all the Christians. I’m sure if he smeared paint on the window of a fur shop everyone would think it was marvellous.”
In the end, as the Post reported, Dempsey escaped a prison sentence:
Calling it a “crime not of hate, but of love,” a Brooklyn judge slapped a $250 fine on the man who defaced a dung-daubed image of the Virgin Mary, instead of tougher penalties prosecutors sought.
State Supreme Court Justice Thomas Farber released Dennis Heiner with the fine on the condition that “so long as he has paint in his hands, he’s required to stay away from the Brooklyn Museum.”
Farber, who has called the Heiner case one of the most difficult of his career, said the frail, gentlemanly Roman Catholic advocate had taught him something new.
“I had assumed that an act like this would always be committed by an angry man motivated by hate,” Farber said. “But this was a crime committed not out of hate but out of love for the Virgin Mary.”
“When the row eventually fades,” the then-editor of Art & Auction magazine, Bruce Wolmer, wrote, “the only smile will be on the face of Charles Saatchi, a master self-promoter.”
Saatchi made a mint off the artworks he sold, sparking criticism of museum institutions’ alleged complicity in inflating the prices of YBA works.
What happened to the offensive painting? Heavily insured, it was lost unto the ages in a warehouse fire. None of the art world figures who chimed in to praise it at the time mourned its passing. Sic transit opprobrium mundi.
Dempsey himself had no regrets, but he said he wouldn’t engage in any more public acts of paint smearing.
“I’m too old,” he told the press, chuckling. “I’ve said my piece.”
May he rest in peace.

Alas, the Seventh Regiment Mess is no more, though we had a few family Christmas-time (and other) celebrations there in its final years.
Happy days when Linda MacGregor was at the helm of it.
Not many people can claim with any accuracy to have crafted a Portal to Paradise, but Simon Verity was one. The master carver was born and raised in Buckinghamshire but made a significant contribution to the stones of New York.
At the Protestant Cathedral of St John the Divine in Morningside Heights — “St John the Unfinished” to many — tools had been downed following the Japanese attack on Pearl Harbor in 1941. When the Very Rev’d James Parks Morton became Dean in the 1980s he decided it was time to re-start work on the gothic hulk — one of the largest cathedrals in the world.
Morton commissioned the Englishman to come and become Master Mason at the New York cathedral based on his experience on the other side of the Atlantic. Verity tackled the main task of finishing the carvings on the great west portal of St John the Divine — the “Portal of Paradise” — training up a team of local youths in stonecarving to help with the job.
“Mr. Verity took the long-dead worthies of the Hebrew and Christian traditions and made them things of wonder for people in our own day,” the current Dean said following Verity’s death earlier this year.
Most memorable was his ostensible depiction of the destruction of the First Temple, which actually showed the Twin Towers and other familiar New York skyscrapers collapsing into ruin and fire.
Late in 2018 — after the collapse of the actual World Trade Center — an unknown vandal took it upon himself to smash the stone towers off the facade, but the Cathedral has since had them restored by Joseph Kincannon who carved the original depiction under Simon Verity.
Eventually the money ran out and the stonecarvers at St John’s had to down tools yet again so Verity returned to England, but he maintained close connections with New York. He was responsible for the carving and lettering in the British & Commonwealth 9/11 Memorial Garden in Hanover Square, for example.
When the trustees of the New York Public Library proposed clearing out the stacks from their glorious Bryant Park main building and moving the books to New Jersey — a truly criminal plan since, thankfully, abandoned — Verity drew a series of doodles in opposition, many depicting the iconic lions Patience and Fortitude who guard the Library’s entrance.
A few of the mentions of his death this summer are gathered here:
The Daily Telegraph — Obituary: Simon Verity
The Economist — Simon Verity Believed in Working the Medieval Way
The Guardian — Obituary: Simon Verity
Cathedral of St John the Divine — A Message from the Dean on Simon Verity


Caro had been a Nieman Fellow at Harvard studying urban planning and land use when he came up with the idea for the book. He thought it would take him nine months, but extensive research and over five-hundred in-person interviews meant it took eight years to complete.
Caro then started working on his study of Lyndon Baines Johnson, the first volume of which emerged in 1982 and the fifth (and final?) one he is still working on. (At the end of the fourth, LBJ had just become president.)
But where does he write? Christopher Bonanos of New York magazine finds out:
It’s an ageless space, one where it could be last week or 1950 inside, matter-of-fact and utilitarian. A couple of bookcases, a plywood work surface, corkboard with outlines tacked up, an old brass lamp, an underworked laptop for emails, a Smith-Corona typewriter. The desk chair is hard wood with no cushion. There’s a saltshaker next to the pencil cup for when Ina brings a sandwich out at midday. The desk has a big half-moon cutout, same as the one back in New York, so he can rest his weight on his forearms and ease his bad back. That arrangement was recommended by Janet Travell, the doctor who grew famous for prescribing John F. Kennedy his Boston rocker. She, with Ina, is a dedicatee of The Power Broker.
He bought the prefab shack, he says, from a place in Riverhead for $2,300, after a contractor quoted him a comically overstuffed Hamptons price to build one. “Thirty years, and it’s never leaked,” he says. This particular shed was a floor sample, bought because he wanted it delivered right away. The business’s owner demurred. “So I said the following thing, which is always the magic words with people who work: ‘I can’t lose the days.’ She gets up, sort of pads back around the corner, and I hear her calling someone … and she comes back and she says, ‘You can have it tomorrow.’”
Does he write out here every day? “Pretty much every day.” Weekends too? “Yeah.” Does he go out much while he’s on the East End? “We have two friends who live south of the highway, and I said to Ina, aside from them, I’m not going this year.” There are other writer friends nearby in Sag Harbor, and they get together, but at this age, Caro admits a little sadly, they’re thinning out. He’ll be 89 this fall.
■ George Grant is a still-underappreciated giant of political thinking in the English-speaking world. He is too little known outside his native Canada, which he sought to defend from the undue overwhelming influence of its sparkling and glamourous southern neighbour. Next year marks the sixtieth anniversary of his Lament for a Nation.
Of all people, a research fellow at Communist China’s Institute for the Marxist Study of Religion — George Dunn — has written a thoughtful introductory overview of Grant’s life and thinking: George Grant and Conservative Social Democracy in Compact.
■ Katja Hoyer mused on an overlapping theme in a recent Berliner Zeitung column which she has helpfully presented in English as well:
A diplomat close to the SPD recently told me that he couldn’t understand why working-class people in particular voted for the AfD. Things weren’t so bad for them, after all. I didn’t bother pointing out that rampant inflation, high energy prices and rising rents have had a hugely detrimental effect on the living standards of people with low and middle incomes because his analysis completely misses the point.
Germany’s working-class voters, Katja argues, feel forgotten by the parties founded to represent them.
■ Since the fall of the Berlin Wall — and earlier in Angledom — political conservatism has effectively been taken over by economic liberalism.
This has denied the centre-right from learning from and deploying useful experience from outside liberalism, with the wisdom of figures as varied as Benjamin Disraeli, Giorgio La Pira, Charles de Gaulle, and Thomas Playford essentially ignored or sidelined.
Kit Kowol’s new book Blue Jerusalem: British Conservatism, Winston Churchill, and the Second World War explores the visionary side of wartime Conservatism. Dr Francis Young offers his take on Tory utopias in The Critic.
■ From a similar era, Andrew Ehrhardt writes at Engelsberg Ideas on Ernest Bevin and the moral-spiritual dimension of British foreign policy.
■ Our friend Samuel Rubinstein has studied at Oxford, Leiden, and the Sorbonne — technically the oldest universities in their three respective countries (although we all know that Leuven is in fact the doyen of Netherlandish academies).
Sam offers an incredibly interesting comparison of the experiences of these three institutions in a humble essay on his Odyssean education:
I arrived in Leiden, armed with my phrase-book, with some ambitions of learning Dutch. The first blow came at the Starbucks in the train station, when the barista answered my Ik wil graag in English without hesitating. The second came the following day when I tried again, at a different café – only this time it seemed that the barista (Spanish? Italian?) didn’t know much Dutch either: even the natives were placing their orders in English. So I gave up – save one hobby, reading Huizinga in the original. I got myself an attractive coffee-table edition of Herfsttij and managed a page or so a day, strenuously piecing it together from my English, German, and smattering of Old English. I still haven’t the faintest idea how to pronounce any of it.
■ And finally, those of us who love Transylvania will enjoy Toby Guise’s summary of the Fifth Transylvanian Book Festival in The New Criterion.
Old Kinderhook is most famous for being the birthplace of the “Red Fox”, Martin van Buren — sometime inhabitant of London and later President of the United States.
He remains the only President who was not a native English speaker, and he spoke with a thick Dutch accent until the end of his days.
If legend is to be believed (and no evidence has been presented compelling us to do otherwise) the town is also the origin of the word “okay” or “O.K.” — for the “Old Kinderhook” clubs that sprung up to support van Buren’s bid for the White House.
Like many towns up and down the Hudson valley, Kinderhook had its own newspaper — originally named the Kinderhook Herald but which later took up the idiosyncratic name of Rough Notes.

As befits the newspaper of record of an old Dutch settlement, its banner bore the motto Een=dracht maakt macht, a Dutch translation of the old Latin motto of the Seven Provinces that means “Unity makes strength”.
These old and highly localised newspapers were once the chief source of information for people in the surrounding districts and one is pleasantly delighted by the sheer variety of the contents.
In addition to news, agricultural reports, poetry, and the moral and religious column there are reports of the meetings of Congress in Washington and the legislature in Albany, trials for murder, amusing notices from other newspapers in the New World, and news of battles and great events worldwide.
Thanks to the excellent New York State Historic Newspapers online archive you can virtually flip through the pages of this and numerous other periodicals.

In the collections of the American Numismatic Society — formerly resident at Audubon Terrace but lately removed further south to Varick Street — there is a fine example of letters patent from the year 1786, signed by Governor George Clinton and validated by the Great Seal of the State of New York.
Letters patent are a form of open declaration by a sovereign or head of state, usually conferring the grant of an office, title, land, or rights. The most well-known patents are those covering the intellectual property of scientific inventions, issued by bodies like the United States Patent and Trademark Office or the UK’s Intellectual Property Office.
These particular letters patent deal with a land grant made to one Joshua Mersereau. From a family of Huguenot extraction, Mersereau studied at King’s College and ran a tavern on Staten Island. When America’s first civil war erupted in 1775, he joined the rebels and was commissioned a major in the “patriot” forces. He also represented his island’s coterminous County of Richmond in the rebel Provincial Congress that convened at Kingston.
Alongside other members of his family, Major Mersereau organised an effective spy ring that gathered useful operational intelligence on the movements of British and loyal American forces in the Hudson Valley, Staten Island, and neighbouring parts of New Jersey. It was likely for that contribution, as well as for his political influence more broadly, that this grant of land was made.

In the collections of the New-York Historical Society there is a photograph deposited amidst the archives of the Seventh Regiment Gazette.
The scene is the Appleton Mess of the Seventh Regiment Armory on Park Avenue, where Company B of the “Silk-Stocking Regiment” was celebrating its one-hundred-and-thirty-fourth birthday.
It was May 1940. The other side of the Atlantic Ocean, British troops were evacuating from Norway, sparking the debate in the House of Commons that would lead to Winston Churchill being appointed Prime Minister.
But on the Upper East Side of Manhattan, all was still peaceful and calm.

With a packed calendar of events, the social life of B Company was as much of a whirl as any other in the Seventh Regiment.
“The members of the Second Company greeted the onrushing spring with a cocktail party and dance on the afternoon of February 11th,” the Gazette reported. “The time-stained rafters of the Veterans Room echoed back as melodious a medley of sweet, swing, and hot as these old ears have heard in many a year.”
“The spaghetti lovers are still meeting down at Tosca’s on Tuesdays,” the Gazette continued. “All members who drop in on this crowd are warned beforehand to eat fast and keep an eye on their plate. A darting fork awaits all unwatched portions and men have been known to sit down to a full dish of Italian cable only to arise half famished.”
Company B’s Entertainment Committee also found time for a Supper Dance at the end of March that year: “When Charley Botts heard ‘In The Mood’ he gathered up the jitterbugs and sent them scampering around in a breathless Big Apple, much to the delight of the wiser and unbruised amongst us who resisted his wiles.”
“Several of the more energetic members closed the evening by visiting that well-known late spot, the Kit-Kat Club, and are now offering mortgages on the family homestead to settle future bills.”

All the faces, the mode of dress — it’s a picture of a vanished New York, a year and a half before the attack on Pearl Harbor. (Incidentally, December 7, 1941 was also the day Col. Cusack — aka ‘Uncle Matt’ — was baptised.)
On another level, it looks just like the Seventh Regiment Mess I knew from my childhood, when it was in the firm but welcoming hands of Linda MacGregor.
The building has been restored physically but since the military was kicked out it is a beautiful but lifeless hulk, preserved as if in formaldehyde and reduced to being a mere “venue”.
Sic transit gloria mundi.

The Institute of Classical Architecture and Art is one of the absolute gems of American civic society.
As part of their remit of promoting traditional architecture and its many associated arts they have a good many videos on their website covering numerous subjects and in a variety of depths and lengths of time.
Here are just a handful.





THE KEEN STUDENT of town and municipal seals, when perusing the emblems of some of the towns on Long Island, will be intrigued by the curious presence of seemingly inexplicable letters on those of Brookhaven and Huntingdon. Their origin is an intriguing and somewhat surprising one.
The great state of New York takes its name from our late and much-lamented monarch, James II (viz. here and here), who was given the province while still Duke of York during the reign of his brother Charles II. This was a little bit cheeky as the land wasn’t actually Charles’s and was happily occupied by our Dutch forefathers of old, who had every intention of keeping it within the merry garth of their seabound empire.
Nonetheless, a few English ships were sent over and the mercantile population persuaded old peg-legged Peter Stuyvesant not to lose his other leg as they generally thought the prospect of New Amsterdam being shelled and burnt to the ground was not an altogether welcome one and what difference does it make which side of the North Sea one is governed from.
The Province of New York was a proprietary colony of the Duke of York, who promulgated an initial set of regulations known as “the Duke’s Laws” to aid the good administration of the colony. Somewhat eccentrically, rather than proceeding by rank of importance, the Duke’s Laws were arranged alphabetically — e.g. under headings Absence, Actions, Administration, etc.
Under ‘H’ came ‘Horses and Mares’ which provided:
That every Town within this Government, shall have a marking Iron or flesh Brand for themselves in particular to distinguish the Horses of one Town from another, besides which, every Owner is to have, and Mark his Horse or Horses with his owne Particular flesh Brand having some distinguishing mark, that one mans Horses may be known from anothers.
An appendix to the Laws provided that these town horse brands would take letter form, starting on the far end of Long Island with ‘A’ for East Hampton and ‘B’ for Southampton and moving all the way along to ‘Q’ for ‘Utricht’ (New Utrecht) and ‘R’ for Gravesend in Brooklyn on the western end of the island.
Caroline Church, Setauket —
1729, named after Queen Caroline, the wife of George II
‘Seatalcott’, or Setauket as we now call it, was assigned the letter ‘D’. Setauket and Brookhaven were basically interchangeable names for the same place, and Brookhaven eventually won out as the town’s official cognomen.
The town seal was authorised by Governor Thomas Dongan — later the 2nd Earl of Limerick — who in 1686 ordained that “the said trustees of the freeholders and commonality of the Town of Brookhaven do, and may have, and use a common Seale”.
It features the town’s horse brand letter alongside a lance and harpoons signifying the whaling trade which was so prominent in this and many English towns here and further up the Atlantic coast.

Huntington, meanwhile, was assigned the letter ‘E’ for its horse brand and as the fifth town also included five dots alongside the letters HVN representing, (with ‘V’ for ‘U’ in the Latin manner) the town’s name. The rope surrounding the town seal represents the shipping that moved the agricultural products grown in the interior to the shore and on towards their final markets.
The town must have been one in which unsound thinking was rife, as it is believed to be named after the genocidal king-murderer Oliver Cromwell’s home town. Worse, much later the town adopted a coat of arms that was modified from Cromwell’s.
Luckily, wiser counsels have prevailed in more recent times. For the town’s 350th anniversary in 2003 it was decided to stop using the Cromwellian arms and rely solely on the town’s seal.
Huntington’s motto — THE TOWN ENDURES — has an almost cryptic quality. The town church — “Old First” — was founded in 1658 and when its second building was finished in 1715 it acquired a bell from England. Sometime during the Revolution, it was carried away by loyal troops and ended up on HMS Swan, where Huntington native Zebulon Platt noticed it while being held prisoner.
If legend is to be believed, one Nathaniel Williams arranged the return of the bell and had it recast in 1793, including the phrase ‘THE TOWN ENDURES’. This may reflect the 1773 town resolution which provided money for the purchase of a parsonage for the church “to lye forever for that purpose as long as the town endures”.

The Second Empire as an architectural style in America has always bad rap. The most prominent example in the New World is the Old Executive Office Building next to the White House in Washington, D.C. — formerly known as the State, War, and Navy Building after the three government departments it housed in the days of a slimmer federal state.
The OEOB was designed by Alfred B. Mullett, a Somerset-born architect who had immigrated to the United States when he was eight years old. Mullett trained as an apprentice under Isaiah Rogers who was Supervising Architect of the U.S. Treasury Department. In practice, the Treasury’s architect designed all the American federal government’s office buildings across the Union, and Mullett inherited the job in 1866.
At that time, the ever-expanding city of New York was desperately in need of a new post office, having occupied the former Middle Dutch Church since 1844. Congress approved funds for a new building, and an architectural competition attracted fifty-two entries. Instead of choosing one of the entries, five leading contenders were selected to collaborate on producing a single design.
Mullett criticised the joint design as too expensive and called in the job to his own office so that he could design the building himself.

Mullett’s Second-Empire design provided for a post office open to the public on the ground floor, mail sorting rooms below it, and space for federal courtrooms as well as offices for federal agencies in the floors above the postal facilities.
The original design (above) called for only four storeys but during the design process the need for more space to serve the growing city moved Mullett to slip another floor in beneath the mansard roof. (more…)
One of the little tragedies of New York urbanism is that when Archer Milton Huntington was transforming a block of upper Manhattan into an acropolis of culture he failed to buy the entire block.
Huntington named his complex Audubon Terrace in honour of the artist and ornithologist John James Audubon whose home, Minniesland, overlooked the Hudson at the western end of the block. His failure to obtain Minniesland meant that the remainder of the block was snapped up by developers instead of incorporated into his campus.
In the 1910s, the speculators built apartment buildings that turned their rather rude and unadorned backs to Audubon Terrace, terminating the vista from Broadway. When you imagine the potential prospect all the way to the river, it is all the more tragic.

The crass posterior of these apartment blocks naturally dissatisfied the members of the American Academy of Arts & Letters, whose building sits on either side — and indeed beneath — the part of the terrace immediately adjacent to them.
McKim Mead & White had designed the first phase of the Academy’s handsome building facing on to West 155th Street, which opened in 1923, and Cass Gilbert was chosen to design the auditorium and pavilion which would complete the body’s portion of the site.

The Academy used the pavilion for art exhibitions and other events, with the terrace in between serving as a useful spot for springtime drinks parties for the academicians and their many guests.
The infelicitous nature of their neighbours clearly irritated the Academy, and in 1929 they had a conversation with Cass Gilbert about designing some sort of screen to satisfyingly terminate the vista down Audubon Terrace and block the view of the apartment buildings.

Gilbert sketched out a plan to build an arched screen connecting the pavilion to the main building across the terrace, topped off by a sculptural flourish.
There is a danger its scale may have overwhelmed the space, but that seems a preferable struggle to face when compared to the problem of the rude neighbours.
Events, as they so often do, intervened. The Wall Street Crash badly affected the American Academy’s finances, and Archer Huntington was forced to increase his already generous subsidy to the body even more just to make ends meet.
Gilbert’s final completion of Audubon Terrace was not to be.

The Academy was founded as a bastion of the old guard against the avante-garde, but in recent decades it has let its hair down a little, and leans more towards the modern than the traditional.
All the same, its current president is an English-public-school-and-Cambridge-educated philosopher from one of the most aristocratic families in Ghana, so it’s reassuring they’re keeping a bit of the old with the new.

The terrace is often used as a filming location for cinema and television, given the high quality of its architecture and the fact that it is visually not well-known even among New Yorkers, so can be deployed as a foreign setting.
The HBO programme ‘Boardwalk Empire’ used the American Academy’s terrace as an Italian port, using green screens (instead of a Cass Gilbert monumental arch) to transform the piazza.


Audubon Terrace and its surviving institutions — the expanding and renovating Hispanic Society, the American Academy of Arts & Letters, and the Church of Our Lady of Esperanza — are an intriguing hidden gem of upper Manhattan, well worth a visit.
I don’t imagine anything like Cass Gilbert’s screen will ever be built, but every time I drop in to this neck of the woods I can’t help but thinking there’s some unfinished business.


From the Westchester Herald (as reprinted in the Times of London, 24 April 1835):
On the premises just mentioned there is still standing an old stone house, built in the ancient Dutch style of architecture, during the French war, by Wolfred Acker, and afterwards purchased by Van Tassel, one at least of whose descendants has been immortalized in story by the racy pen of its present gifted proprietor.
It is the identical house at which was assembled the memorable tea-party, described in the legend of Sleepy Hollow, on that disastrous night when the ill-starred Ichabod was rejected by the fair Katrina, and also encountered the fearful companionship of Brom Bones in the character of the headless Hessian.
The characters in this delectable drama are mostly known to our readers; but time, that tells all tales, enables us to add one item more, which is, that the original of the sagacious schoolmaster was not the individual generally considered as such, who still resides in this country, but Jesse Martin, a gentleman who bore the birchen sway at the period of which the legend speaks, and who afterwards removed further up the Hudson, and is since deceased.
The location is a most delightfully secluded spot, eminently suited to the musings and mastery of mind; and it is the design of the proprietor, without changing the style or aspect of the premises, to put them in complete repair, and occupy them as a place of retirement and repose from the business and bustle of the world.